ΠΑΡΓΑ
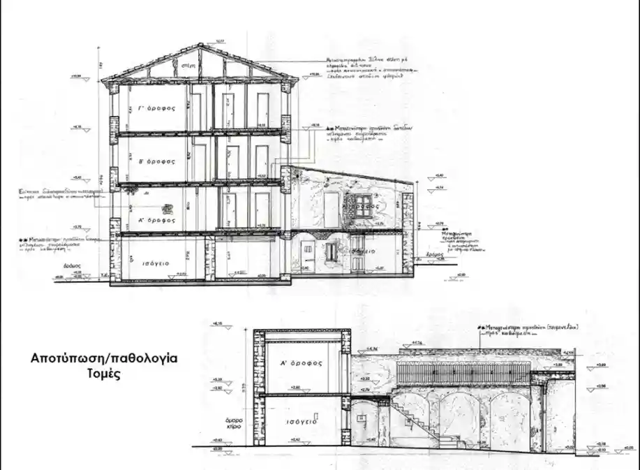
Έτοιμο για δημοπράτηση το έργο αναστύλωσης του κτιρίου Βασιλλά στην Πάργα


Τις οριστικές μελέτες για την «Δημιουργική επανάχρηση του κτιρίου Β.Ε.Βασιλά» που έχουν λάβει όλες τις απαραίτητες εγκρίσεις από τις υπηρεσίες του Υπουργείου Πολιτισμού, καθώς και τα σχετικά τεύχη δημοπράτησης παρέλαβε το Δημοτικό Συμβούλιο Πάργας.
Ο Δήμος Πάργας πλέον προχωρά στην άμεση δημοπράτηση του έργου αναστύλωσης του ιστορικού κτιρίου με εξασφαλισμένους πόρους 1.150.000 €, που θα το σώσει από τον κίνδυνο κατάρρευσης και θα αποδώσει στην πόλη ένα πολυχώρο, ο οποίος θα αποτελέσει ένα κύτταρο πολιτισμού.
Αξίζει να σημειωθεί ότι οι πρώτες μελέτες για το κτίριο αυτό, είχαν ξεκινήσει από το τέλος της δεκαετίας του 90, χωρίς να έχουν λάβει καμία από τις απαραίτητες εγκρίσεις με αποτέλεσμα, το έργο να έχει τελματώσει.
Μετά από την ανάδειξη αναδόχου από μειοδοτικό διαγωνισμό και έπειτα από μια επίπονη διαδικασία με συνεχή επικοινωνία και συνεργασία του Δήμου, των μελετητών, της Υπηρεσίας Νεότερων Μνημείων Ηπείρου και του Υπουργείου Πολιτισμού, οι μελέτες έλαβαν την έγκριση του Κεντρικού Συμβουλίου Νεότερων Μνημείων.
ΠΑΡΓΑ3 months agoΑυτός είναι ο δράστης της ένοπλης ληστείας στην Πάργα
ΠΑΡΓΑ3 months agoΛηστεία και πυροβολισμοί στην Πάργα: Δράστες απείλησαν τον ιδιοκτήτη και πυροβόλησαν για να διαφύγουν
ΠΑΡΓΑ3 months agoθρίλερ με τον 62χρονο ψαρά που γλίστρησε από το καΐκι κι έπεσε στη θάλασσα – «τον είδε να βυθίζεται…»
ΠΑΡΓΑ3 months agoΕντοπίστηκε η σορός του 63χρονου ψαρά στην Πάργα
ΠΑΡΓΑ3 months agoΠάργα: Ληστεία σε κατάστημα χρυσαφικών και κλοπή αυτοκινήτου από τους δράστες
ΠΑΡΓΑ3 months agoΟλονύκτιες έρευνες για τον εντοπισμό του αγνοούμενου ψαρά στην Πάργα
ΠΑΡΓΑ3 months agoΛύχνος Πάργας: Λιμενικό και αλιευτικά αναζητούν αγνοούμενο ψαρά
ΑΠΟΨΕΙΣ2 weeks agoΔύο μικρές αναθέσεις, μία βαριά ποινή: Ερωτήματα για την αργία του Δημάρχου Πάργας



























